Работаем с 2004 года

Более 700 реализованных проектов группой компаний Matrix Group

Заказать обратный звонок

Комплексная отделка квартир
с ответственностью
за качество и соблюдение сроков

Оставьте заявку на расчет
сметы и получите
дизайнерскую мебель в ванную
комнату в подарок!

У нас собственное мебельное производство. Всем заказавшим отделку квартиры в апреле,
мы дарим комплект дизайнерской мебели в ванную комнату.

Акция действует до 30 апреля!

Наши Цены

Мы убедились на собственном опыте, что только полный комплекс отделочных работ обеспечивает хороший результат. Поэтому мы не беремся за какие-то отдельные виды работ, маскируя их названием «косметический ремонт». Только качественная и честная работа под ключ.

И еще. Мы работаем только по проекту. Нам нужен хотя бы минимальный комплект чертежей. Если их нет, мы можем помочь в их создании. Если Вы убеждены, что умеете хорошо объяснять устно и чертежи Вам не нужны, то обратитесь в другую компанию, мы с Вами работать не будем.

Минимальная стоимость комплексной отделки по проекту – 6700 руб./м.кв. В стоимость мы включаем все работы. Материалы считаются отдельно.

Закажите примеры расчета сметы

Мы осуществляем отделку помещений в следующих стилях:

современный (модерн), хай-тек, минимализм, классика, ар-деко.

Мы не беремся за ампир, барроко и большинство этнических стилей.

Посмотрите примеры интерьеров в разных стилях,
за отделку которых мы беремся.

Современный
хай-тек
минимализм
классика
ар-деко
Прикрепить файл

Закажите бесплатный расчет сметы от matrix interior

примеры
реализованных проектов

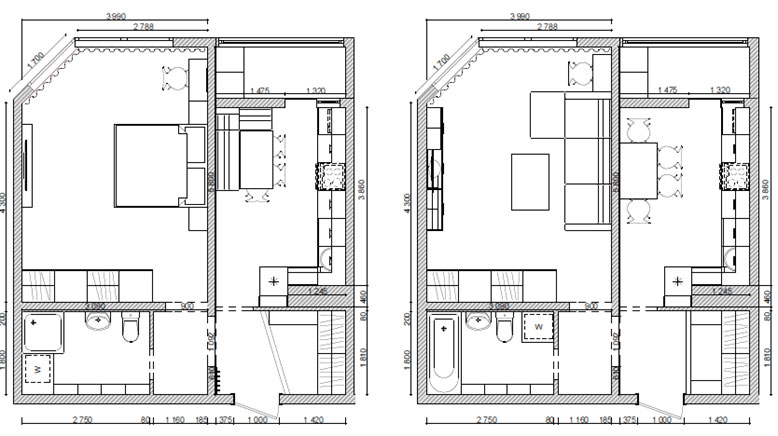
однокомнатная квартира 46 m2

Комплексная отделка под ключ.
Стоимость всех работ: 280 000руб.

Смотрите другие фотографии
и подробную информацию о проекте

Мы очень довольны и результатом
работы, и тем, как происходило
взаимодействие между нами в
процессе ремонта

avatar
Татьяна Касаткина,

финансист

раскрытие личности

certificate

квартира студия 32 m2

Комплексная отделка под ключ.
Стоимость всех работ: 280 000руб.

Смотрите другие фотографии
и подробную информацию о проекте

Мы очень довольны и результатом
работы, и тем, как происходило
взаимодействие между нами в
процессе ремонта

avatar
Татьяна Касаткина,

финансист

раскрытие личности

certificate
Еще несколько фотографий наших работ
Matrix

Matrix Interior – это часть группы компаний Matrix Group.

Также в эту группу входит Мебельная Фабрика MATRIX, специализирующаяся

на проектировании и изготовлении корпусной и встраиваемой мебели по индивидуальным проектам

Заказывая отделку в Matrix Interior, Вы получаете особые
условия на услуги Мебельной Фабрики MATRIX.

Хотите знать больше? Тогда жмите

сюда

наш Адрес:

БЦ «Маркус»

Василеостровский район,

10-я линия В.О., дом 59

+7 (812) 245-33-50 8 (800) 775 37 08 info@matrix-group.ru

ОСТАЛИСЬ ВОПРОСЫ? Задайте их менеджеру +7 (812) 245-33-50

class="modal-item">
остались вопросы или нужно больше
информации по этому проекту
(сметы, сроки, этапы и т.д.)?
Задайте их менеджеру:
+7 (495) 256 01 40

Или заказывайте выезд
инженера-сметчика на объект: